產品列表
	
	
	
MZF型明桿式鑄鐵鑲銅方閘門

	用途
常用于給水、排水、防汛等水利工程。
	
結構與特點
本設備主要由門框、閘板、密封圈及可調式楔形壓塊等部件組成。閘門久用磨損后,其密封面可通過楔形壓塊的調整來保證正常工作。具有結構合理堅固、耐磨耐腐蝕性強、性能可靠;安裝、調試、使用、維護方便等特點。
	
主要技術參數
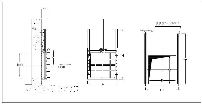
1、閘門應按圖示位置安裝、閘板設于迎水面;
2、閘板壓向門框允許大壓力0.1MPa;
3、閘板壓離門框允許大壓力0.02MPa;
4、密封工作部位滲漏量不大于1.25L/min m。
	
外形示意圖及安裝尺寸
常用于給水、排水、防汛等水利工程。
結構與特點
本設備主要由門框、閘板、密封圈及可調式楔形壓塊等部件組成。閘門久用磨損后,其密封面可通過楔形壓塊的調整來保證正常工作。具有結構合理堅固、耐磨耐腐蝕性強、性能可靠;安裝、調試、使用、維護方便等特點。
主要技術參數
1、閘門應按圖示位置安裝、閘板設于迎水面;
2、閘板壓向門框允許大壓力0.1MPa;
3、閘板壓離門框允許大壓力0.02MPa;
4、密封工作部位滲漏量不大于1.25L/min m。
外形示意圖及安裝尺寸

| 安裝尺寸參數表 | 300-1000 | 
| 型號規格 | 口徑 | 外形及安裝尺寸 | |||||||
| D×D | A | b | c | E | H | L | L1 | δ | |
| MZF-300 | 300×300 | 456 | 150 | 200 | 83 | 580 | 580 | 456 | 12 | 
| MZF-400 | 400×400 | 556 | 150 | 250 | 83 | 680 | 680 | 556 | 12 | 
| MZF-500 | 500×500 | 656 | 150 | 310 | 83 | 780 | 780 | 656 | 12 | 
| MZF-600 | 600×600 | 790 | 150 | 360 | 123 | 900 | 900 | 790 | 12 | 
| MZF-700 | 700×700 | 940 | 150 | 420 | 135 | 1000 | 1000 | 940 | 12 | 
| MZF-800 | 800×800 | 1010 | 150 | 470 | 150 | 1200 | 1200 | 1010 | 12 | 
| MZF-1000 | 1000×1000 | 1210 | 150 | 580 | 163 | 1700 | 1700 | 1210 | 12 | 
| 安裝尺寸參數表 | 1200-2400 | 
| 型號規格 | 口徑 | 外形及安裝尺寸 | |||||||
| D×D | A | b | c | E | H | L | L1 | δ | |
| MZF-1200 | 1200×1200 | 1430 | 150 | 690 | 174 | 2000 | 2000 | 1430 | 12 | 
| MZF-1400 | 1400×1400 | 1630 | 150 | 800 | 174 | 2500 | 2500 | 1630 | 12 | 
| MZF-1600 | 1600×1600 | 1850 | 150 | 900 | 204 | 2800 | 2800 | 1850 | 12 | 
| MZF-1800 | 1800×1800 | 2050 | 150 | 1000 | 220 | 3200 | 3200 | 2050 | 12 | 
| MZF-2000 | 2000×2000 | 2270 | 150 | 1110 | 254 | 3700 | 3700 | 2270 | 12 | 
| MZF-2200 | 2200×2200 | 2480 | 150 | 1210 | 254 | 4100 | 4100 | 2480 | 12 | 
| MZF-2400 | 2400×2400 | 2660 | 150 | 1315 | 260 | 4500 | 4500 | 2660 | 12 | 

| 安裝尺寸參數表 | 2600-5000 | 
| 型號規格 | 口徑 | 外 形 及 安 裝 尺 寸 | ||||||||
| D×D | A | b | c | E | H | L | L1 | L2 | δ | |
| MZF-2600 | 2600×2600 | 2880 | 200 | 1410 | 280 | 4800 | 4800 | 2880 | 2600 | 12 | 
| MZF-2800 | 2800×2800 | 3080 | 200 | 1515 | 320 | 5200 | 5200 | 3080 | 2800 | 12 | 
| MZF-3000 | 3000×3000 | 3310 | 200 | 1620 | 320 | 5600 | 5600 | 3310 | 3000 | 12 | 
| MZF-3500 | 3500×3500 | 3820 | 200 | 1880 | 320 | 6500 | 6500 | 3820 | 3500 | 12 | 
| MZF-4000 | 4000×4000 | 4330 | 200 | 2130 | 360 | 7500 | 7500 | 4330 | 4000 | 12 | 
| MZF-4500 | 4500×4500 | 4830 | 200 | 2380 | 360 | 8500 | 8500 | 4830 | 4500 | 12 | 
| MZF-5000 | 5000×5000 | 5350 | 200 | 2650 | 360 | 9500 | 9500 | 5350 | 5000 | 12 | 
上一篇:MZY型明桿式鑄鐵鑲銅圓閘門
下一篇:QZ型不銹鋼渠道閘門



 
 
 
 
 
蘇公網安備32028202232131號